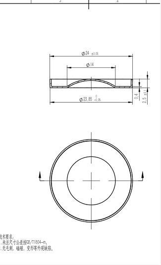
寻能做如图工件的五金冲压件的加工厂,需求量6000件
2022-12-14 本站作者 【 字体:大 中 小 】
寻能做如图工件的五金冲压件的加工厂,需求量6000件,后续不定,材质是铁的,如图,厂家包工包料,我司这边做不了,我司在凤岗做车床件,冲压件是说帮忙找的,客户是在上海,地区没有要求,能做的联系,厂家有能做钣金件,折弯,冲压件也可以,主要是可以加工比亚迪汽车件,钣金加工需要找深惠莞一带的,有意向合作的联系,微信同号

猜你喜欢
寻求东莞附近水镀镀铬与镀黑铬,以及珍珠铬+镀亮镍配合的加工厂
2021-12-30
676
676
寻求大朗附近退镀加工厂,每月2万件,材质是不锈钢301的
2021-09-28
953
953
寻找做真空镀NCVM工艺的厂家,总量160万套/年
2021-05-28
967
967
寻找东莞周边做塑胶小枪喷油的加工厂,量有三款,每款每批几千件
2021-07-08
648
648
寻求电镀仿金色的加工厂,手上订单有两千万件
2021-05-11
1014
1014
寻求挂镀黑镍的电镀加工厂,月需求量五千件
2021-10-19
1000
1000
寻找深莞惠附近地区电镀加工厂,年加工费用在200-300万之间
2021-09-22
1060
1060
寻找做非金属水镀真金的厂家,预估一年10万件
2021-05-08
717
717
寻求电泳银色加工厂,量一个月多的是几十万件少的是几万件
2021-09-28
659
659
寻求塘厦,清溪,凤岗附近水镀亮蓝色,亮银色的电镀加工厂
2021-06-24
986
986 